二次元裏@ふたば
[ホーム]

[掲示板に戻る]
レス送信モード
おなまえ
E-mail
題  名
コメント
添付File []
削除キー(削除用.英数字で8字以内)

画像ファイル名:1772239266217.jpg-(93169 B)
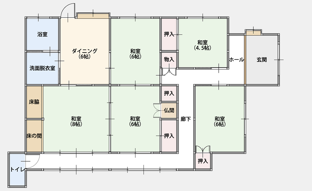
93169 B無念Nameとしあき26/02/28(土)09:41:06No.1390528627そうだねx3 21:49頃消えます
こういうのでいいんだよ
こういうので
1無念Nameとしあき26/02/28(土)09:42:01No.1390528758そうだねx15
収納なさすぎ
2無念Nameとしあき26/02/28(土)09:42:12No.1390528785そうだねx10
    1772239332040.jpg-(8922 B)
8922 B
キタ━━━(゚∀゚)━━━!!
3無念Nameとしあき26/02/28(土)09:42:32No.1390528832そうだねx13
ユニットバスじゃなければなぁ
4無念Nameとしあき26/02/28(土)09:42:49No.1390528867そうだねx3
キッチンと部屋は分離させて
5無念Nameとしあき26/02/28(土)09:42:58No.1390528903+
ジムには良いかもな
6無念Nameとしあき26/02/28(土)09:43:11No.1390528944そうだねx4
一人暮らしでも個室か最低限ベッドゾーンとの仕切りは欲しい
7無念Nameとしあき26/02/28(土)09:44:06No.1390529073+
>収納なさすぎ
13畳あるんだから仕切り作って収納スペース作ればよくない?
8無念Nameとしあき26/02/28(土)09:44:23No.1390529117そうだねx2
じーさんになったらこれくらいじゃないと厳しいそう
9無念Nameとしあき26/02/28(土)09:44:28No.1390529139そうだねx7
バストイレは別にして
10無念Nameとしあき26/02/28(土)09:44:38No.1390529163そうだねx1
独立洗面台は必須だろ
11無念Nameとしあき26/02/28(土)09:44:50No.1390529196+
町内会館?
12無念Nameとしあき26/02/28(土)09:45:23No.1390529292そうだねx1
洗濯機置き場はどこよ??
13無念Nameとしあき26/02/28(土)09:45:37No.1390529336そうだねx2
ユニットバスってそんなに嫌かなぁ
一人暮らししてた時そこまで不便じゃなかったけど
でも今だとウォシュレット付けられなのは厳しいかも
14無念Nameとしあき26/02/28(土)09:45:39No.1390529341そうだねx1
キッチンと居室は仕切りたい
キッチンのスペース減らして足が伸ばせる湯船の風呂にしてトイレは分けたい
15無念Nameとしあき26/02/28(土)09:46:05No.1390529406+
>洗濯機置き場はどこよ??
脱衣室?
16無念Nameとしあき26/02/28(土)09:46:13No.1390529428+
土地価格は?
17無念Nameとしあき26/02/28(土)09:46:15No.1390529439+
建物価格が500万でも土地が2000万とかやろ
18無念Nameとしあき26/02/28(土)09:46:16No.1390529444+
ワンルームアパートより収納ないな
19無念Nameとしあき26/02/28(土)09:47:09No.1390529603そうだねx2
>キッチンと居室は仕切りたい
料理する人はこれ絶対必要だよな
20無念Nameとしあき26/02/28(土)09:48:58No.1390529899+
風呂トイレは別にして寝室もできればほしい
21無念Nameとしあき26/02/28(土)09:49:00No.1390529905そうだねx1
このサイズだったら掃き出し窓いらなくない
22無念Nameとしあき26/02/28(土)09:49:22No.1390529964+
>一人暮らしでも個室か最低限ベッドゾーンとの仕切りは欲しい
布団と衣類の生み出すホコリからなるべく隔離できる部屋が欲しいよね
なんならそっちがメインで寝室兼クローゼットは4畳半もあれば十分
23無念Nameとしあき26/02/28(土)09:50:39No.1390530183+
こんな家なら築50年の中古物件でも探すほうがいい
土地込みで500万もいけるで
24無念Nameとしあき26/02/28(土)09:53:05No.1390530600そうだねx3
>こんな家なら築50年の中古物件でも探すほうがいい
>土地込みで500万もいけるで
築50年は色々限界きてそう
500万の倍額用意しないとな
25無念Nameとしあき26/02/28(土)09:53:17No.1390530641+
>こんな家なら築50年の中古物件でも探すほうがいい
>土地込みで500万もいけるで
どんだけ田舎だよ
26無念Nameとしあき26/02/28(土)09:53:19No.1390530647そうだねx14
    1772239999292.jpg-(63111 B)
63111 B
こっちで
27無念Nameとしあき26/02/28(土)09:53:30No.1390530682そうだねx1
ユニットバスは風呂トイレが一体化してる風呂じゃないぞ
別になってても普通はユニットバスだ
28無念Nameとしあき26/02/28(土)09:53:54No.1390530764そうだねx7
>こっちで
一気に住みやすそうになるな
29無念Nameとしあき26/02/28(土)09:53:54No.1390530765そうだねx2
>>こんな家なら築50年の中古物件でも探すほうがいい
>>土地込みで500万もいけるで
>どんだけ田舎だよ
スレ画も田舎じゃないと成立しないよ
30無念Nameとしあき26/02/28(土)09:54:53No.1390530922+
>こっちで
ええやん!
31無念Nameとしあき26/02/28(土)09:55:03No.1390530950+
>こっちで
スレ画はより上のランクを買わせるための捨て物件か
32無念Nameとしあき26/02/28(土)09:58:23No.1390531536そうだねx2
>こっちで
トイレの前の1マスいらんからトイレを縦にしてクローゼット3マスにしろよ...
33無念Nameとしあき26/02/28(土)09:58:49No.1390531618+
    1772240329300.webp-(21726 B)
21726 B
たぶんスレ画もこのくらいの付帯工事費がかかる
スレ画トータル900万、こっちトータル1100万と考えたら(さらに+土地代)
まあもうちょっと上を狙うよね
34無念Nameとしあき26/02/28(土)09:59:55No.1390531831+
>こっちで
部屋は寝るだけだから3〜4畳にしてその分リビング側を大きくしたいな
リビング8畳は冷蔵庫やら大型の物を置くから狭い
35無念Nameとしあき26/02/28(土)10:00:04No.1390531860+
>たぶんスレ画もこのくらいの付帯工事費がかかる
>スレ画トータル900万、こっちトータル1100万と考えたら(さらに+土地代)
>まあもうちょっと上を狙うよね
外構ないからさらに高くなるやろうな
36無念Nameとしあき26/02/28(土)10:01:51No.1390532169+
中古の分譲団地と同等かそれ以下の間取りじゃ新築一戸建ての意味なくね?
37無念Nameとしあき26/02/28(土)10:03:25No.1390532441そうだねx1
    1772240605127.png-(87439 B)
87439 B
お前たちが本当に欲しい家
38無念Nameとしあき26/02/28(土)10:04:21No.1390532588+
>お前たちが本当に欲しい家
和室要らないし部屋の入口はそれぞれ1個ずつで良い
39無念Nameとしあき26/02/28(土)10:06:14No.1390532925そうだねx2
>お前たちが本当に欲しい家
サザエさん?違うか
40無念Nameとしあき26/02/28(土)10:06:53No.1390533028そうだねx3
>お前たちが本当に欲しい家
サザエさんの家?
41無念Nameとしあき26/02/28(土)10:07:02No.1390533059+
>お前たちが本当に欲しい家
冬寒い
42無念Nameとしあき26/02/28(土)10:09:25No.1390533499+
でかい風呂がいい
掃除に困るほどのでかさでなくていいけど
43無念Nameとしあき26/02/28(土)10:10:41No.1390533724+
アメリカみたいにインナーガレージあればいいのに
44無念Nameとしあき26/02/28(土)10:11:06No.1390533810そうだねx1
    1772241066739.jpg-(173943 B)
173943 B
どうせ狭いならドームハウスが良い
安いのに災害に強くて冷暖房効率最強らしい
45無念Nameとしあき26/02/28(土)10:11:47No.1390533952+
>1772240329300.webp
活性水生成装置って何?
46無念Nameとしあき26/02/28(土)10:12:15No.1390534046+
マンションやアパートなら三点式や二点式ユニットバスをユニットバスっていうのはいいけど一戸建でこれをユニットバスって言うと微妙な顔されるからやめとけ
47無念Nameとしあき26/02/28(土)10:13:42No.1390534289+
化学反応を起こしやすい水…だろうか
48無念Nameとしあき26/02/28(土)10:14:26No.1390534413+
トイレとサニタリーは別けて
49無念Nameとしあき26/02/28(土)10:16:53No.1390534825+
風呂トイレ一緒が嫌なのは衛生面的にも嫌なんだけど風呂周りに物置くの難しくなるからってのもある
50無念Nameとしあき26/02/28(土)10:17:44No.1390534975+
収納奥にしろ30㎡は最低ないときつい
51無念Nameとしあき26/02/28(土)10:18:19No.1390535065+
せっかくの新築一戸建てで狭いシンク狭いトイレ狭い洗面脱衣所狭い風呂は無意味で悲しくなる
52無念Nameとしあき26/02/28(土)10:20:49No.1390535524+
小金持ちの家庭がもと畑だった庭の隅っこに子供のピアノ練習場として作るのがスレ画
未来のヤリ部屋
53無念Nameとしあき26/02/28(土)10:22:37No.1390535816+
畳とかマジでクソだぞ
54無念Nameとしあき26/02/28(土)10:22:51No.1390535854+
>小金持ちの家庭がもと畑だった庭の隅っこに子供のピアノ練習場として作るのがスレ画
>未来のヤリ部屋
昔は庭にコンテナ運んで部屋にしてる家とかあったなあ
55無念Nameとしあき26/02/28(土)10:23:58No.1390536035+
>畳とかマジでクソだぞ
物を置かなければそうでもないし何より横になれるぞ
56無念Nameとしあき26/02/28(土)10:24:06No.1390536061そうだねx2
ユニットバスでもいいけどトイレに座った時に目の前の壁が近いのがヤダ
57無念Nameとしあき26/02/28(土)10:27:10No.1390536595+
>こういうのでいいんだよ
>こういうので
図面見ただけで間取り悪い
LDがムダに広くて3点ユニットバスなんか
風呂入ってる時に他の人がトイレしたい時困るだろ
58無念Nameとしあき26/02/28(土)10:27:59No.1390536734+
作業部屋と寝室と放鳥部屋は別に欲しい
リビングが寝室でもいいけど
59無念Nameとしあき26/02/28(土)10:28:17No.1390536777そうだねx2
    1772242097388.webp-(54254 B)
54254 B
たたみはこういうのでいいや
60無念Nameとしあき26/02/28(土)10:28:30No.1390536803+
屋根も豆腐にして欲しい
61無念Nameとしあき26/02/28(土)10:28:37No.1390536821+
収納のいうか納戸は6畳は欲しいから実質2Kが最低構成かな
62無念Nameとしあき26/02/28(土)10:32:45No.1390537521+
これならもうプラス500万出すわ
63無念Nameとしあき26/02/28(土)10:40:36No.1390538776+
    1772242836362.jpg-(161207 B)
161207 B
こういうのって義務化に耐えられずに廃業or値上げになるビジョンだよな
あと4年で一昔前のタワマン以上の断熱性能を求められるようになるが…
64無念Nameとしあき26/02/28(土)10:41:45No.1390538977+
寒い暑い
65無念Nameとしあき26/02/28(土)10:46:53No.1390539906+
>収納なさすぎ
ロフトがあればワンちゃん🐶
66無念Nameとしあき26/02/28(土)10:47:58No.1390540097+
https://may.2chan.net/b/res/1390531740.htm
67無念Nameとしあき26/02/28(土)10:48:32No.1390540197+
>こういうのでいいんだよ
>こういうので
収納は自分で準備すればいいし
一人暮らしならこれで十分だな
68無念Nameとしあき26/02/28(土)10:48:43No.1390540229+
>どうせ狭いならドームハウスが良い
>安いのに災害に強くて冷暖房効率最強らしい
ルークの家か
69無念Nameとしあき26/02/28(土)10:50:08No.1390540488+
>>こっちで
>一気に住みやすそうになるな
しかし平屋は断熱がクソだと聞くが
70無念Nameとしあき26/02/28(土)10:52:30No.1390540869+
ド田舎の一軒家で嫁と2人暮らしだけど部屋は無駄に8部屋あるな地味に掃除がキツイ
71無念Nameとしあき26/02/28(土)10:53:15No.1390540983+
>しかし平屋は断熱がクソだと聞くが
壁の素材とか次第なんじゃね?
72無念Nameとしあき26/02/28(土)10:59:06No.1390542030+
>たたみはこういうのでいいや
畳のある家で育ったんで一部屋ぐらい欲しいと思うが
これなら無いほうがマシ段差でつまずいて寝たきりになる未来しか見えん
73無念Nameとしあき26/02/28(土)11:01:18No.1390542386+
フローリングよりカーペットが好きだけど一部屋だけ畳にするのもありかななんて考えてる
74無念Nameとしあき26/02/28(土)11:01:54No.1390542482+
>畳のある家で育ったんで一部屋ぐらい欲しいと思うが
>これなら無いほうがマシ段差でつまずいて寝たきりになる未来しか見えん
年取ると立ち上がるのに労力いるんよ
これなら畳に上がるのに腰掛けて横滑りすればいい
75無念Nameとしあき26/02/28(土)11:03:57No.1390542820+
    1772244237234.jpg-(150496 B)
150496 B
大体今の物件はよっぽどじゃない限り全熱交換換はついてるから
いわゆる部屋の中で底冷えしたり蒸し風呂になるケースはほぼないと思っていい
76無念Nameとしあき26/02/28(土)11:06:08No.1390543189+
交換換
77無念Nameとしあき26/02/28(土)11:08:31No.1390543552+
今の家には熱交換器なんてものが付くのか
エアコンの室内機を普段手を入れられないところにもう一個置くようなもんか
正直な感想はばかばかしいの一言だ
78無念Nameとしあき26/02/28(土)11:12:26No.1390544217そうだねx1
>LDがムダに広くて3点ユニットバスなんか
>風呂入ってる時に他の人がトイレしたい時困るだろ
他の人はいない
79無念Nameとしあき26/02/28(土)11:14:17No.1390544555+
>ド田舎の一軒家で嫁と2人暮らしだけど部屋は無駄に8部屋あるな地味に掃除がキツイ
ルンバ的なやつはどうかな
でも無駄に8部屋ってことは中古で段差ありかな
80無念Nameとしあき26/02/28(土)11:17:02No.1390545052+
    1772245022224.jpg-(298201 B)
298201 B
このくらいでいいです
後は駅近くらいしか希望はない
81無念Nameとしあき26/02/28(土)11:18:34No.1390545303+
>このくらいでいいです
>後は駅近くらいしか希望はない
首都圏なら1.8億は覚悟だな
82無念Nameとしあき26/02/28(土)11:21:58No.1390545935+
自分の考えた理想の間取りとか実現はまぁ無理だがせめてVRとかで体験出来ねぇかな
83無念Nameとしあき26/02/28(土)11:22:10No.1390545974+
仕切りが無くて掃除が楽でいいよ
84無念Nameとしあき26/02/28(土)11:22:28No.1390546030+
    1772245348174.jpg-(111459 B)
111459 B
コンテナハウスとか憧れる
実際は大変らしいが
85無念Nameとしあき26/02/28(土)11:24:18No.1390546353+
スレ画とかバイク用のガレージじゃん
86無念Nameとしあき26/02/28(土)11:25:20No.1390546530+
こんなプレハブが500万とか騙されて買う情弱がいるんだろうなぁ
普通に150万くらいで立つぞ
87無念Nameとしあき26/02/28(土)11:25:38No.1390546583+
L字の平屋は憧れるけど雪降る環境だと結局四角い家がコスパいいんだよな
88無念Nameとしあき26/02/28(土)11:26:12No.1390546690+
畳はカビるし寝転がると痒くなる
アレルギー持ちには無理や
89無念Nameとしあき26/02/28(土)11:27:38No.1390546921そうだねx1
畳がカビる家は畳でなくとも問題あるだろ
90無念Nameとしあき26/02/28(土)11:28:02No.1390546989+
>コンテナハウスとか憧れる
>実際は大変らしいが
耐久年数云々言われるけど正直ノーメンテで10年もつなら割と住まいとして十分すぎる気がする
普通にアパート借りて10年も経ったらどこかしら必ずガタくるしな
91無念Nameとしあき26/02/28(土)11:28:43No.1390547123+
>大体今の物件はよっぽどじゃない限り全熱交換換はついてるから
>いわゆる部屋の中で底冷えしたり蒸し風呂になるケースはほぼないと思っていい
熱交って能力全然高くないぞ
外気にちょっと味付けするくらいしか出来ん
92無念Nameとしあき26/02/28(土)11:31:06No.1390547566+
結局は住むエリアよな
93無念Nameとしあき26/02/28(土)11:31:35No.1390547670+
内見動画いいよね
94無念Nameとしあき26/02/28(土)11:33:16No.1390547995+
    1772245996488.jpg-(91401 B)
91401 B
>こういうのでいいんだよ
>こういうので
うるせえやなこった

こういうのでいいんだよ
こういうので

- GazouBBS + futaba-